武蔵村山市神明3丁目 新築分譲住宅 14区画 3,280万円~
物件概要
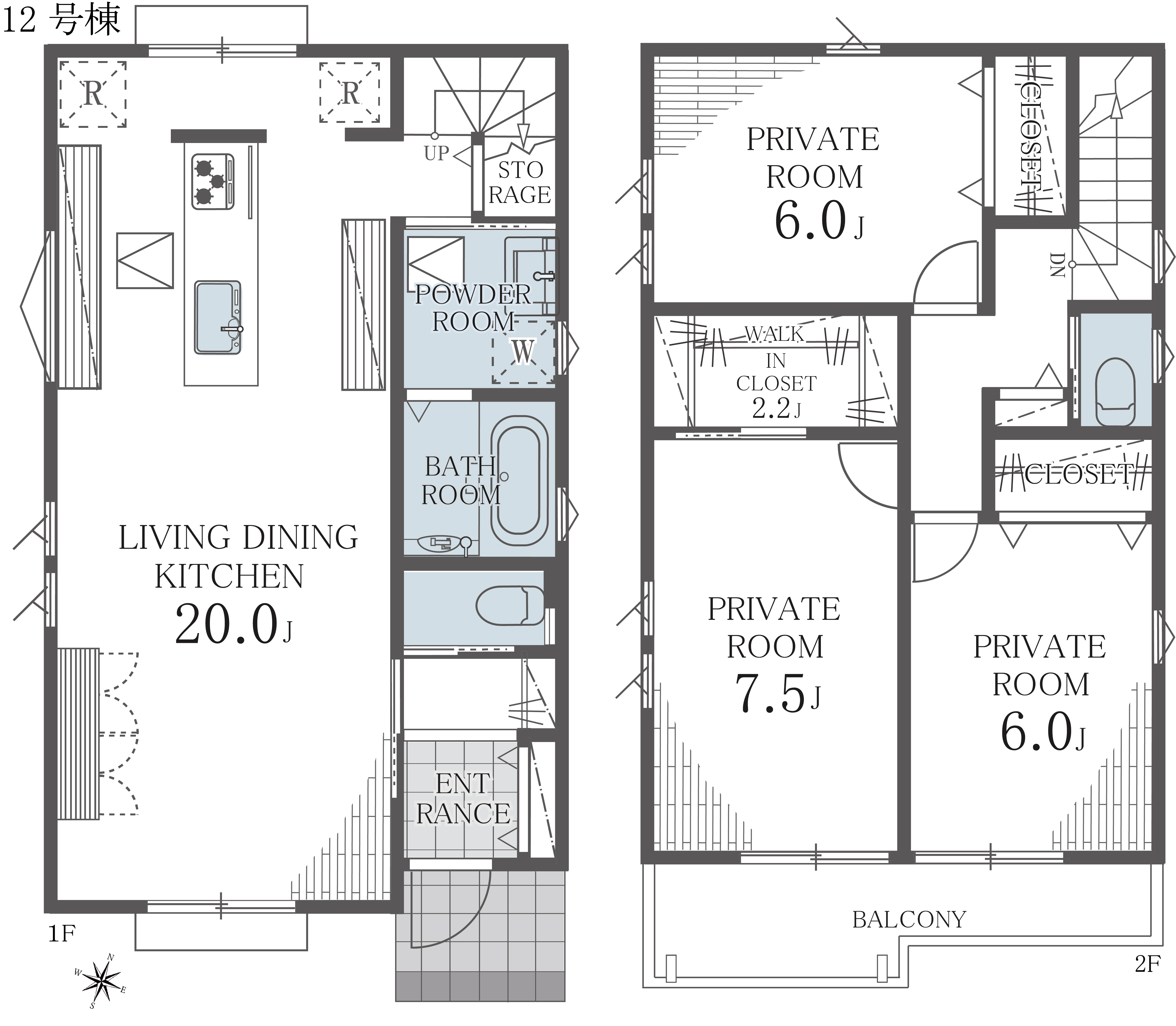
[gallery link="file"]
●所在地/武蔵村山市神明3-100-2、100-1
●交通/多摩都市モノレール「上北台」駅徒歩15分
●土地権利/所有権
●地目/宅地
●用途地域/第一種低層住居専用地域
●法制限/第一種高度地区、法22条区域
●建ぺい率/ 40%
●容積率/ 80%
●開発許可番号/6多建開一開第71号
●開発検査済番号/6多建開一変第18号の2
●総棟数/全14棟
●土地面積/120.00~123.98㎡
●建物面積/93.15~95.58㎡
●構造/木造スレート葺2階建
●建物完成予定時期/ 2025年11月下旬~2026年7月下旬
●販売価格/3,180~3,380万円(税込)
●接道/北東側6.00M公道、開発道路5.00M公道
●設備/公営水道、本下水、東京電力、プロパンガス
●備考/図面と現況が異なる場合、現況を優先と致します。
※ ㈱日本住宅保証検査機構「JIOわが家の保険」10年保証に
加入予定
※一般社団法人ハウスワランティによる地盤保証付き
※住宅省エネルギー性能証明書発行費用として、
105,000円(税込)別途必要になります
※フラット35sご利用時】金利Aタイプ利用の場合は、
適合証明書取得費用245,000円(税込)が別途必要になります
●学区域/市立第三小学校、市立第三中学校

